Property Type
House, 12 - 2 Story
Parking
2 garage, 2 parking
MLS #
2388441
Size
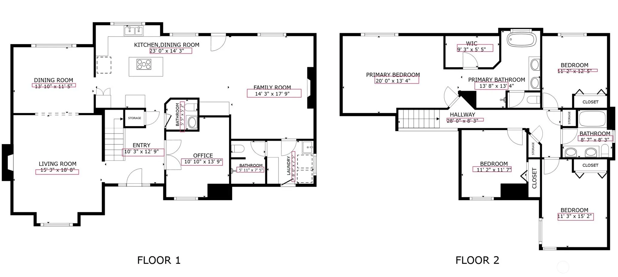
2750 sqft
Basement
None
Listed on
-
Lot size
-
Tax
$11,756 /yr
Days on Market
-
Year Built
1988
Maintenance Fee
$ 0/mo